SAT on an EXTENSIVE 0.12 OF AN ACRE PLOT (sts), this EXQUISITELY PRESENTED & SPACIOUS 1,862 sq ft, FOUR BEDROOM SEMI-DETACHED PERIOD home boasts a PLETHORA of CHARACTER FEATURES throughout. LOCATED just a SHORT WALK from STUNNING 34 ACRE RIVERSIDE PARK & LOCATED in a DESIRABLE CONSERVATION AREA near SCENIC RIVERSIDE WALKS along the NORTH BANK of the RIVER GREAT OUSE. For COMMUTERS, the property is PERFECTLY LOCATED just 1.5 miles away from HUNTINGDON TRAIN STATION with LONDON KINGS CROSS reachable in less than 50 minutes in addition to HUNTINGDON TOWN CENTRE being 1 mile away.
**GUIDE PRICE of £465,000 to £475,000**
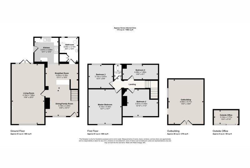
PROPERTY MEASUREMENTS
DINING/FAMILY ROOM - 4.18m x 3.34m
BREAKFAST ROOM - 4.25m x 3.18m
LIVING ROOM - 7.69m x 4.19m
KITCHEN - 3.07m x 3.05m
BATHROOM - 3.14m x 2.45m
MASTER BEDROOM - 4.44m x 4.14m
BEDROOM TWO - 3.91m x 3.43m
BEDROOM THREE - 3.13m x 2.97m
BEDROOM FOUR - 4.48m x 1.86m
WC - 1.84m x 0.93m
OUTBUILDING - 5.71m x 4.50m
OUTSIDE DETACHED OFFICE UNIT - 3.14m x 1.77m
ABOUT HARTFORD/HUNTINGDON
The historic market town of Huntingdon is located on the north bank of the River Great Ouse and offers a wealth of amenities to it's residents and visitors. The town centre itself offers varied shopping from both national and independent retailers as well as having two retail parks on the towns perimeter. Leisure facilities include a multiplex cinema with a variety of national food outlets, sports and swimming centre, and various sports clubs as well as excellent riverside walks and the country park at Hinchingbrooke.
Huntingdon is positioned at the crossroads of the north-south/east-west road links with excellent access to the A1 and A14 providing direct routes into both Cambridge and Peterborough, taking approximately 30 mins (off peak). Furthermore, the guided busway route into Cambridge can be accessed via bus routes from the town or via the park and ride site in nearby St Ives. Huntingdon Station also offers fast train links into London Kings Cross as well as Peterborough, a train hub to major cities across the UK.
With its pedestrianised shopping centre, Huntingdon offers visitors a choice of national, independent and boutique shops. The town is undergoing a major facelift with the ongoing redevelopment in several areas. The historic High Street, St Benedicts Court and Chequers Court now offer a good mix of shops for all tastes. Gift shops, craft shops, bookshops, antique shops, clothes and home-style shops all allow a happy time to be whiled away.
Traditional markets are held every Saturday and Wednesday in the Market Square, with the popular Farmers' Markets every other Friday and on the last Saturday of a five-week month. There is also a popular Crafts & Collectables Market every Friday in the town's Commemoration Hall.
Visiting markets include French and Italian Markets and exquisite craft markets. All year round there are periods of entertainment to keep the young at heart happy with the popular Christmas Lights event lighting up the town each November for the festive period.
There are plenty of places to enjoy a drink, a bite to eat or a more formal dining experience as well as pavement cafes for those hazy summer days.
The Surrounding Area Huntingdon Racecourse is just a stone's throw from the town, directly off the A14 and holds regular race meetings including family fun days.
Portholme, between Godmanchester and Huntingdon, is the largest lowland meadow in Engl.and. Perfect for peaceful walks and escaping the rat-race.
Houghton Mill, a National Trust property, is a water mill located on the Great Ouse. Flour is still milled here and the building is a tourist centre, with a camping site nearby.
Grafham Water Centre, near Perry, offers land and water based activities as well as walks and bike hire around the reservoir.
PROPERTY DISCLAIMER
NOTE TO ALL INTERESTED PARTIES We always endeavour to make our sales particulars as accurate and reliable as possible, however, they do not constitute or form part of an offer or any contract and none is to be relied upon as statements of representation or fact. All measurements have been taken as a guide to buyers only, and are not precise.
To conform with government Money Laundering Regulations 2019, we are required to confirm the identity of all prospective buyers. We use the services of a third party, HIPLA, who will contact you directly. They will need the full name, date of birth, current address and proof of address through a form of ID and utility bill. There is a nominal charge of £50 including VAT for this (for the transaction not per person), payable direct to Lennon James Property. Please note, we are unable to issue a memorandum of sale until the checks are complete.
1. Money Laundering Regulations: Intending purchasers will be asked to produce identification documentation at a later stage and we would ask for your co-operation in order that there will be no delay in agreeing the sale.
2. General: While we endeavour to make our sales particulars fair, accurate and reliable, they are only a general guide to the property and, accordingly, if there is any point which is of particular importance to you, please contact the office and we will be pleased to check the position for you, especially if you are contemplating travelling some distance to view the property.
3. The measurements indicated are supplied for guidance only and as such must be considered incorrect.
4. Services: Please note we have not tested the services or any of the equipment or appliances in this property, accordingly we strongly advise prospective buyers to commission their own survey or service reports before finalising their offer to purchase.
5. These particulars are issued in good faith but do not constitute representations of fact or form part of any offer or contract. The matters referred to in these details should be independently verified by prospective buyers. Neither Lennon James or any of its employees have any authority to make or give any representation or warranty in relation to this property.
Map
Mortgage Calculator
Estimated Monthly Costs:
Stamp Duty Calculator
Estimated Stamp Duty: £
Make Enquiry
Please complete the form below and a member of staff will be in touch shortly.